風冷模塊式冷熱水機組是以空氣為冷(熱)源,以水為供冷(熱)介質的中央空調機組。作為冷熱兼用型的一體化設備,風冷模塊式冷熱水機組省略了冷卻塔、水泵、鍋爐及相應管道系統等許多輔件,系統結構簡單,安裝空間小,Kaiyun官網登錄入口 開云網站維護管理方便且節約能源,適用廣泛。因此,風冷模塊式冷熱水機組通常適用于既無供熱鍋爐,又無供熱管網或其它穩定可靠熱源,卻又要求全年空調的暖通工程,是設計中優先選用的方案。

主機與風機盤管、空調箱等末端裝置所組成的集中式、半集中式中央空調系統具有布置靈活、控制方式多樣等特點,Kaiyun官網登錄入口 開云網站尤其適用于商場、醫院、賓館、工廠、辦公大樓等場合使用。

15 RT ~ 75 RT(即以61 KW ~ 261 KW),一般情況以15 RT模塊為基礎組合,在任何廠商相對比較時,15 RT模塊性價比也是最好的。
VRV系統即一臺室外機配置多臺室內機,通過改變制冷劑流量能適應各房間負荷變化的直接膨脹式空氣調節系統。通過控制壓縮機的冷媒循環量以及進入室內機的冷媒流量,來滿足系統對冷熱需求的負荷與輸出。

全稱是Varied Refrigerant Volume,簡稱VRV,是一種變制冷劑流量式空調系統,它以制冷劑為輸送介質。系統主要由室內機、室外機、冷媒管以及控制部分組成。一般分為外機、內機。
主要包含一到三個壓縮機(一個模塊),然后配套的風冷式換熱器(夏季冷凝器,冬季蒸發器),四通閥,膨脹閥,控制板等。
冷媒管路連接室外機室內機,一般一~三臺外機一組帶5~16臺內機。信號線跟冷媒管路一起鋪設;冷凝水系統將室內機產生的冷凝水排到下水點。與常規水系統相比沒有水泵,沒有大型集中式風管,由于不通過水做載冷劑,采用制冷劑直接蒸發式,同等冷量下,換熱面積小,內機尺寸緊湊,便于安裝與裝飾配合通常為20000平米以下空調的首選型式。
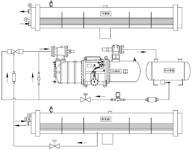
蒸發器中的制冷劑蒸汽被螺桿壓縮機吸入后,電機通過壓縮機轉子對其施加能量,使制冷劑蒸汽的壓力提高并進入冷凝器;與此同時,制冷劑蒸汽的溫度在壓縮終了時也相應提高。
由壓縮機來的高壓、高溫制冷劑蒸汽,在冷凝器中通過管內的冷卻水放出熱量,溫度有所下降,同時在飽和壓力(冷凝溫度所對應的冷凝壓力)下,冷凝成為液體。這時,冷卻水因從制冷劑蒸汽中攝取了熱量,其溫度要有所升高。冷卻水的溫度與冷凝溫度(冷凝壓力)直接有關。
由冷凝器底部來的高溫、高壓制冷劑液體,流經節流裝置時,發生減壓膨脹,壓力、溫度都降低,變為低壓、低溫液體進入蒸發器中。
低壓、低溫制冷劑液體在蒸發器內從載冷劑(如冷水)中攝取熱量后蒸發為氣體,同時使載冷劑的溫度降低,從而實現人工制冷,蒸發器內的制冷劑蒸汽又被壓縮機吸入進行壓縮,重復上述壓縮、冷凝、節流、蒸發過程。如此周而復始,達到連續制冷的目的。
在壓縮機內部,冷凍油依靠系統的高低壓差,再通過內設Kaiyun 開云官網入口油路,分別Kaiyun 開云官網入口對軸承和轉子提供潤滑和冷卻。
壓縮機連續排氣過程中,冷凍油會隨著制冷劑氣體一起排出壓縮機,如果排出的冷凍油無法重新回到壓縮機,將可能導致壓縮機失油,嚴重時會損壞壓縮機。回油系統,保證隨制冷劑氣體排出的冷凍油順利回到壓縮機,確保機組安全可靠運行。

水冷螺桿式冷水機組也是冷水機組的一種,由于它的主要構成部件使用了螺桿式壓縮機,所以名稱可稱謂水冷螺桿式冷水機組。主要由半封閉雙螺桿壓縮機、殼管式冷凝器及滿液式蒸發器、油分離器、節流機構、電氣控制系統等組合而成。
(1)蒸發器:在機組運行過程中,蒸發器一直維持較低的溫度和壓力,以便蒸發的制冷劑氣體帶走流過其內部冷凍水的熱量。
(2)冷凝器:在機組運行過程中,冷凝器一直維持較高的溫度和壓力,以便流過冷凝器的冷卻水帶走制冷劑中的熱量。
(3)螺桿壓縮機:不斷將蒸發器中蒸發的制冷劑氣體送至冷凝器中,維持系統的高低壓差。
(4)油分離器:將隨制冷劑氣體排出的冷凍油分離出來直接送回壓縮機,保證壓縮機安全可靠運行。
(5)電控系統:采用PLC或單片機控制系統,可自動調節機組輸出制冷量達到用戶實際需求;可控制使用側、熱源測水泵及冷卻塔風機;顯示以下參數:冷凍水進出水溫度、冷卻水進出水溫度、蒸發、冷凝壓力等系統參數;可進行當前故障及歷史故障記錄查詢。

油分回油:在壓縮機排氣和冷凝器之間安裝了高效油分離器,隨著制冷劑氣體排出的冷凍油,絕大部分會被油分離器攔截并通過吸氣口直接送回壓縮機。
高壓引射回油:小部分冷凍油進入冷凝器后,最終會在蒸發器中聚集,依靠高壓液體作為動力,可以將聚集在蒸發器中的冷凍油直接帶回壓縮機。
控制系統采用微電腦控制,控制柜面板上裝有電源、運行、故障指示燈,可方便直觀地了解當前機組的工作狀況。此外,控制柜面板上裝有急停開關,當機組發生緊急故障需馬上停機時,可按下急停開關,確保機組安全。
能為賓館、醫院、藥廠、影劇院、體育館、娛樂中心、商業大廈、寫字樓、工礦企業等場所的中央空調系統提供冷水,又能為紡織、化工、食品、電子、科研等行業提供工藝冷凍水。

通過滑閥調節實現機組平滑適應空調負荷變化,無喘震現象,維護成本低,電機壽命長;
特別聲明:以上內容(如有圖片或視頻亦包括在內)為自媒體平臺“網易號”用戶上傳并發布,本平臺僅提供信息存儲服務。
連云港一女子在公司參加酒局后身亡,數名鄉鎮公職人員曾赴宴,公司:事發后已報警
最高氣溫升至40℃以上!重慶連續9天發布高溫紅色預警,有大學被熱到推遲開學
vivo X100 Ultra 影像的力量:夢回古蜀 鏡頭下的成都時光之旅
影馳RTX 4070 Ti S特別紀念版顯卡評測:百幀黑神話,能與怪斗法
影馳RTX 4070 Ti SUPER特別紀念版顯卡:大圣當袈裟,燈效玩出花